觀音寺長江大橋公安側邊跨混凝土主梁施工工程勞務分包招標公告
一、招標情況簡述
1.招標人:湖南路橋建設集團有限責任公司長江分公司
2.本次招標項目觀音寺長江大橋公安側邊跨混凝土主梁施工工程勞務分包工程
3.項目地點:湖北省荊州市公安縣
4.工程樁號范圍:K18+709.404-K19+639.404
5.計劃施工時間:2024年9月25日至2026年8月30日
6.本次招標標的金額: 31504707.69元
二、招標內容和范圍包括:
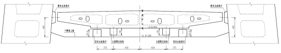
1.招標內容:觀音寺長江大橋公安側邊跨混凝土主梁施工工程。公安側邊跨預應力混凝土主梁劃分為22類(A~P),共49個節段,節段長為4.35m、6m、6.5m、7.25m、7.5m、7.75m、8m、8.5m。A1~A3節段采用標準橫斷面,長7.5~8.25m,重量為1020~1109t,端部Q梁段長4.25m,重1061T,其余梁段長6~8.5m梁段重量為1006~1569t。業主及監理對此項工程極為專注,施工質量要求極其高。主梁總體構造圖如下圖所示:
(1)主梁采用單箱四室斷面,全寬41.0m,中心線處梁高4.0m。橋面設置雙向2%橫坡,由箱梁頂板斜置而成。標準節段頂板厚40cm,平底板厚40cm,斜底板厚40cm,腹板厚55cm;根據受力需要,索塔區及支點區板厚相應增加。主梁標準斷面圖如下圖所示:

(2)斜拉索錨固區設置在梁底,主梁在斜拉索錨固位置(過渡墩、輔助墩及索塔除外)設置橫隔板,板厚40cm,順橋向標準間距為8.0m;在過渡墩、輔助墩、索塔處設置橫梁,厚度分別為3.0m、2.5m、3.0m。

(3)主梁設置縱向、橫向預應力。其中,縱向預應力分為體內預應力和體外預應力??v向體內預應力采用φ50mm、φ75mm高強螺紋鋼筋,在節段拼裝過程中逐段接長??v向體外預應力采用鍍鋅無粘結鋼絞線成品索,規格為15-19,沿腹板兩側布置。待每跨節段架設完畢、斜拉索張拉到位后,張拉該跨體外束。
(4)主梁橫向預應力采用φs15.2mm 高強低松弛鋼絞線,布置在頂板、底板、橫隔板、橫梁內部。橫向預應力在節段預制過程中張拉完畢。
2.主要工程量:混凝土節段箱梁預制23771m3、混凝土節段箱梁移梁23771m3、混凝土節段箱梁拼裝23771m3、鋼筋安裝3430610kg,鋼絞線張拉、壓漿522583kg。
三、投標人資質要求
1.投標人具備相應的資質:施工勞務不分等級及以上 ;
2.投標人注冊資金不應低于人民幣 800萬元;
3.投標人需營業執照、資質證書、安全生產許可證,并在有效期限內;
4.具有獨立法人資格及較強的技術力量、經濟實力,并在人員、設備等方面具有承擔本標段勞務施工的能力;
5.本次招標不接受聯合體投標;
6.需在湖南路橋勞務庫中單位,首次參與投標的分包單位須通過線下向采購單位提交相關申請資料,辦理注冊準入。
四、投標邀請書及招標文件的獲取
1.符合以上投標資格并有意參加投標的被邀請人,需在“湖南路橋電子招投標采購交易平臺”(以下簡稱“交易平臺”)門戶網站點擊“注冊及CA管理”,按要求在平臺完成注冊、入庫后方可接受在線邀請及下載招標文件;投標人辦理完成CA數字證書后方可開展全流程電子招采活動,具體辦理可咨詢門戶網站下方電話、微信、QQ。
2.投標人登錄系統接受邀請后,需提供以下相關證明資料(加蓋單位公章)掃描件上傳至電子招投標交易平臺:企業法人營業執照副本、企業資質證書副本、安全生產許可證副本、經辦人身份證。
3.投標邀請書發出及招標文件下載時間: 2024年9月11日-2024年9月14日:
投標人務必在此時間前,完成在交易平臺的注冊及入庫,否則,投標人無法收到投標邀請函。
五、投標文件遞交:
1.投標文件遞交截止時間及開標時間: 2024年9月20日 ;
2.遞交方式:投標人應使用電子交易平臺提供的投標文件制作工具編制投標文件,并按招標文件要求進行加密,在上述規定的投標截止時間前,通過互聯網使用CA數字證書登錄電子交易平臺,將加密的投標文件上傳,并保存上傳成功后系統自動生成的電子簽收憑證,遞交時間即為電子簽收憑證時間。投標人應充分考慮上傳文件時的不可預見因素,未在投標截止時間前完成上傳的,視為逾期送達,將不予受理。
六、采購人聯系方式
聯系人:龍敏
聯系電話或其它方式:15386215967 。
七、其他
本項目采用全流程電子招投標,通過“湖南路橋電子招投標采購交易平臺”(http://zc.hnrb.cn:5199)開展招投標活動,注冊時請先查閱門戶網站>幫助中心>操作指南中《投標人(供應商)操作手冊》,參與投標過程中遇到的平臺問題可咨詢門戶網站下方技術支持電話、微信、QQ。
招標人:湖南路橋建設集團有限責任公司長江分公司
2024年 9 月 11 日
下一篇:湖南省通泰工程有限公司 機制砂、瀝青中下面層碎石材料招標公告 返回列表


